产品分类
products
联系麻豆视频下载 / contact us
地址:上海市金山区枫泾镇环东一路
邮编:201507
网址:www.jhwfbzp.com
销售部
手机:13353397666
电话:021-5648 6189
传真:021-5186 1633
商务QQ:3038069780
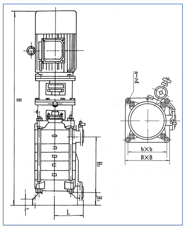
DL型立式多级离心泵
当前位置:首页 > DL型立式多级离心泵DL型立式多级离心泵
DL立式多级离心泵是采用国家推荐使用的高效节能产品IS型泵的水力模型,为立式多级多节段式结构。螺杆把进水段、中段、出水段夹紧联成一体。水泵每一级装一个叶轮、一个导水叶。轴向力采用水力平衡法解决,残余轴向力由球轴轴承承受,用油脂润滑。轴封采用软填料或机械密封。产品执行JB/T2727-93《立式多级离心泵型式与基本参数》标准,主要供吸送稀释的、清洁的、不腐蚀的、不爆炸的清水及物理化学性质类似水的不含固体颗粒或纤维的液体。
本司多级泵全部采用计算机设计和优化处理,公司拥有雄厚的技术力量、丰富的生产经验和完善的检测手段,从而保证产品质量的稳定可靠。
产品特点:
1、水力模型先进:效率高,性能范围广。
2、结构新颖,运行可靠:取消了平衡鼓,其轴向力采用水力平衡,彻底解决了平衡鼓易锈蚀、易咬死、易磨损的问题,保证了运行更加可靠。
3、更少的运行、维修费用:采用优质机械密封,耐磨损、无泄漏、使用寿命长,故障率低,具有更少的运行维修费用。
4、运行平稳,噪音低:采用低转速电机,使泵运行平稳,噪音更低。
5、立式结构,占地面积小。
多级泵技术参数:
流量:4.2-504m3/h;
扬程:24-240m;
功率:1.5-450kw;
转速:1480r/min;
口径:φ40-φ250;
温度范围:0-+90℃;
工作压力:≤2.4Mpa。













